제주 소형 타운하우스, 아일랜드힐 5차 도평 2억대 분양
제주에서 시작하는 힐링 라이프 제주는 대한민국에서 가장 인기 있는 주거 및 투자 지역 중 하나로, 아름다운 자연환경과 쾌적한 주거 환경을 제공합니다. 최근 1~2인 가구와 세컨드하우스를 찾는 사람들이 증가하면서 소형 타운하우스에 대한 관심도 높아지고 있습니다. 이번에 소개할 아일랜드힐 5차 도평은 자연과 도심의 장점을 모두 갖춘 최적의 주거 공간입니다.


제주 소형 타운하우스의 매력
1) 자연과 함께하는 삶
제주는 한라산과 푸른 바다를 동시에 감상할 수 있는 천혜의 자연환경을 갖추고 있습니다. 제주 소형 타운하우스는 이러한 자연을 가까이에서 누릴 수 있도록 설계되어 있으며, 도심의 복잡함에서 벗어나 일상 속에서 힐링과 여유를 즐길 수 있습니다.
- 한라산과 바다 조망 가능
- 자연 친화적 환경에서 쾌적한 생활
- 도심의 번잡함에서 벗어난 힐링 공간

2) 합리적인 분양가와 높은 투자 가치
제주 소형 타운하우스는 대형 주택 대비 상대적으로 저렴한 가격으로 공급되어 초기 부담이 적습니다. 또한 주택 수 제외 혜택이 적용되어 양도세 및 종부세 중과를 피할 수 있어 투자 가치가 높습니다.
- 분양가 2억대 초반으로 부담 없는 가격
- 주택 수 미포함 혜택으로 양도세 & 종부세 중과 제외
- 실거주와 임대수익을 동시에 기대할 수 있는 안정적인 투자처

3) 실용적이고 효율적인 공간 설계
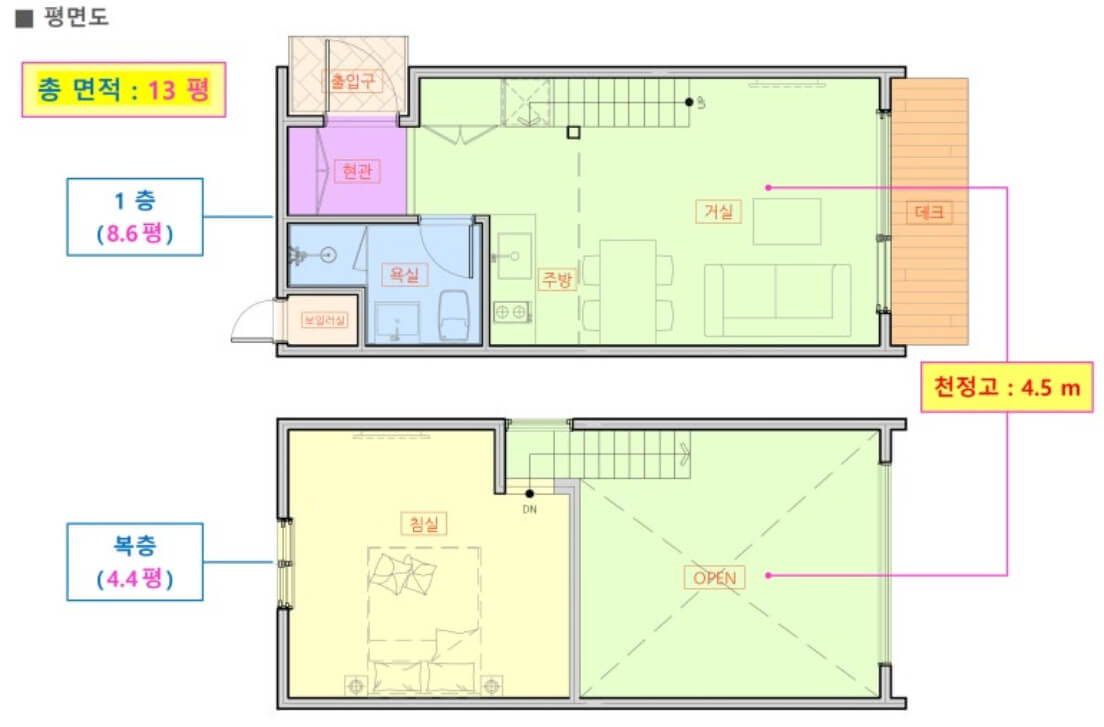
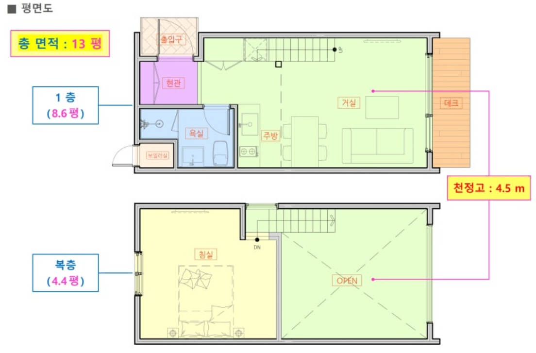
제주 소형 타운하우스는 13평 규모의 복층형 단독주택으로, 실내 공간을 효율적으로 활용할 수 있도록 설계되었습니다.
- 1층 (8.6평) : 현관, 거실, 주방, 화장실, 잔디정원
- 복층 (4.4평) : 침실
- 거실 천정고 4.5m로 개방감 극대화
- 층간소음 없는 단독형 구조

4) 편리한 생활 인프라
아일랜드힐 5차 도평 타운하우스는 신제주(노형동) 생활권에 위치하여 다양한 생활 인프라를 편리하게 이용할 수 있습니다.
- 노형오거리 (이마트 신제주점, 드림타워 복합리조트) 3.7km
- 제주국제공항 7.6km
- 인근 카페, 마트, 병원, 쇼핑몰 등 생활 편의시설 접근성 우수

아일랜드힐 5차 도평 타운하우스 분양 정보
분양 타입 및 구조
타입 : 13평형 복층형 단독주택
구성 : 단독형 타운하우스 (총 8세대)
주차 : 세대당 1대 (총 8대) 2)


기본 제공 옵션
LG 빌트인 냉장고, LG 빌트인 세탁기, LG 전자레인지, 2구 전기레인지, LG 에어컨 등 풀옵션 제공 개별 잔디정원 포함
바다(부분) & 한라산 조망 가능
입주 예정일
2025년 10월 예정

제주 소형 타운하우스, 어떤 분들에게 적합할까?
실거주자
제주의 쾌적한 자연 속에서 살고 싶은 1~2인 가구에게 적합한 주거 형태입니다. 또한, 층간소음 걱정 없이 단독형으로 설계되어 조용한 환경을 원하는 분들에게도 안성맞춤입니다.
세컨하우스를 찾는 분
도심의 바쁜 생활을 벗어나 주말이나 휴가철에 머물 수 있는 세컨하우스를 찾는 분들에게 추천드립니다. 제주 소형 타운하우스는 유지관리 부담이 적고, 자연 속에서 편안한 휴식을 취할 수 있는 공간을 제공합니다.
투자자
부동산 투자 시 중요한 요소 중 하나는 안정성과 수익성입니다. 제주 소형 타운하우스는 주택 수 제외 혜택이 적용되어 세금 부담이 적으며, 관광객 및 장기 거주자를 대상으로 한 임대 수익을 기대할 수 있습니다.

안정적인 임대 수익 가능
주택 수 제외로 양도세 부담 감소 장기적으로 높은 가치 상승 기대 4. 제주 소형 타운하우스 구매 시 체크포인트 입지 조건 : 편의시설 및 교통 접근성을 고려해야 합니다.
- 공간 활용도 : 실거주 또는 투자 목적에 따라 적합한 구조인지 확인해야 합니다.
- 분양가 및 세금 혜택 : 주택 수 제외 여부 및 예상되는 세금 부담을 분석해야 합니다.
- 임대 수익 가능성 : 주변 임대 시장을 조사하여 수익성을 평가해야 합니다.


마무리
제주 소형 타운하우스는 아름다운 자연 환경과 함께 실용적인 공간 활용, 합리적인 가격, 높은 투자 가치를 제공합니다. 특히 아일랜드힐 5차 도평은 신제주 생활권에 위치하여 편리한 생활 인프라까지 갖춘 최적의 주거 공간입니다.
지금 제주 소형 타운하우스에 대한 정보를 확인하고, 자연 속에서 여유롭고 편안한 라이프스타일을 시작해 보세요!
상담 예약 010-7683-1788
'부동산 정보' 카테고리의 다른 글
| 판교 오피스텔 대장동 디오르나인 선착순 분양 (0) | 2025.03.17 |
|---|---|
| 제주 영어교육도시 타운하우스 포스힐 프레스티지 선착순 할인분양 서귀포시 단독주택 (0) | 2025.03.05 |
| 서울시 서초구 서초동 지젤 라이프그라피 서초 오피스텔 특별혜택 선착순 분양 (0) | 2025.02.16 |
| 인천 영종도 운북동 단독주택 삼성파라다이스 타운하우스 선착순 분양 (0) | 2025.02.13 |
| 제주 서귀포시 오션캐슬 반값 할인 신축 아파트 제주도 미분양 (0) | 2025.02.10 |
