제주영여교육도시 명품 타운하우스 빌리드 드므
제주 서귀포시 대정읍 안성리 영어 교육도시의 명품 타운하우스 최고급 명품 타운하우스 빌라드 드므를 소개합니다. 이 타운하우스는 제주도의 아름다운 자연환경 속에 위치하면서도 영어교육도시와의 근접성으로 학교 및 쇼핑, 의료시설 등 인프라가 풍부합니다. 영어 생활권에서의 생활은 영어로 일상 소통이 가능하며, 국제 학교와 다양한 교육환경을 경험할 수 있습니다.


타운하우스는 최상의 교육환경과 함께 편안한 주거환경을 제공합니다. 주택은 대지 377평, 주택연면적 267평으로 구성되어 있으며, 1층과 2층으로 이루어진 단독주택 구조입니다. 각층마다 고급 옵션과 편의시설이 구비되어 있으며, 주차시설도 편리하게 마련되어 있습니다.

사업개요
대지위치: 제주특별자치도 서귀포시 대정읍 안성리 1525번지 외 7필지 지역/지구: 자연녹지지역
대지면적: 9,982㎡/3,019.55평
건축면적: 1,953.72㎡/591평
건폐율:19.57%(법정 - 20% 이하)
연면적:2,908.76㎡/879.90평
용적률: 26.54%(법정-80% 이하)
용도: 단독형 타운하우스(8동)
규모: 지상 2층/9.09M
구조: 철근콘크리트 구조
주차대수: 40대(법정 40대 이상)
준공예정 : 22024년 7월
단지배치도


세대층 별 면적표


최상의 교육환경
최고의 학교 및 쇼핑, 의료시설 인프라가 풍부합니다. 대표적으로 20분 거리 내에 서귀포 혁신도시와 첨단의료 복합단지인 헬스케어타운이 근접해 있습니다. 4개의 국제학교가 운영 중인 영어교육도시와 차량 10분 내 거리로 뛰어난 접근성!!
친환경 입지 조건
제주 바다와 산, 오름, 곶자왈 까지 제주도의 아름다운 자연환경을 누릴 수 있는 곳.
종합관광단지인 중문관광단지와 신화역사공원이 근접해 있으며, 오설록 티 뮤지엄, 고급 골프장 등 다양한 휴양 레저 및 관광 인프라가 풍부한 지역입니다.
편리한 교통
제주도의 각종 관광지 및 개발지역이 주변에 인접해 있고 제주공항과 서귀포 제2공항 예정지가 30~40분 내 거리에 위치해 있어 편리하게 생활하실 수 있습니다.
이곳은 친환경 입지 조건을 갖추고 있어 제주의 아름다운 자연환경을 즐길 수 있습니다. 중문관광단지와 신화역사공원 등 관광명소가 인접해 있어 휴양과 레저를 즐길 수 있으며, 제주공항과 서귀포 제2공항까지의 접근성도 우수합니다.
외부


내부


1층에는 주방, 거실, 침실 등이 있으며, 중정가든과 연못을 조망할 수 있는 공간이 마련되어 있습니다. 2층은 갤러리라운지와 마스터룸, 테라스 등으로 구성되어 있으며, 옥상에는 수영장이 마련되어 있어 휴식을 취할 수 있는 공간입니다.


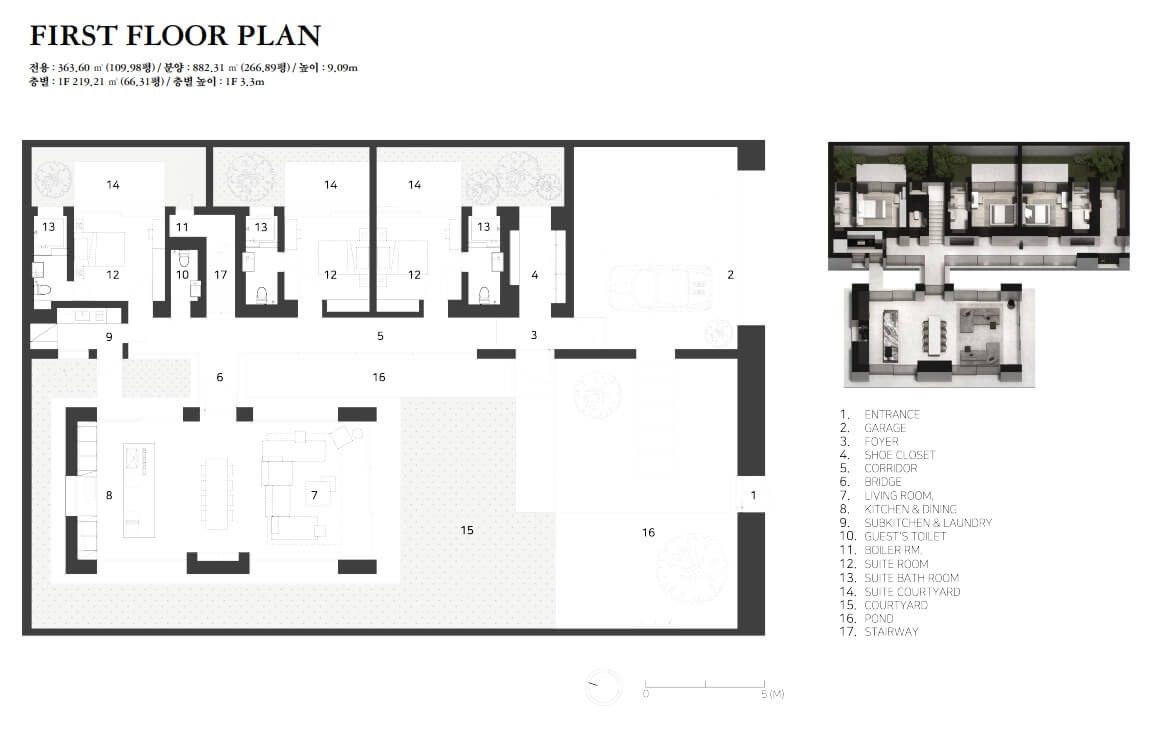
1층
1층은 3개의 침실과 거실, 주방, 보조주방, 세탁실, 공용화장실, 기계실, 정원, 실내차고지로 구성되어 있습니다.
거실의 모든 면은 독일 슈코[SCHUCO] 시스템창호로 시공, 3.3m의 압도적인 높이만큼 특별 주문제작되어 설치, 슈코[SCHUCO]는 방음등 기밀성이 뛰어난 제품으로 널리 알려져 있어 하이엔드 고급주택에서는 많이 채택하고 있는 전 세계 최고의 프리미엄 창호브랜드입니다. 또한 독일 융(JUNG) 사의 홈스마트 시스템을 통해 외부에서도 조명, 냉/난방, 전동 블라인드, 출입통제, 보안 등 언제든 손쉽게 제어가 가능합니다.





2층
2층은 마스터룸(침실, 드레스룸, 파우더룸, 전용욕실, 발코니)이 있습니다. 마스터존은 40평에 달 할 정도로 여유 있는 공간으로 꾸며져 있으며, 메인문을 열고 들어가면 큰 창을 사이로 왼쪽으로는 침실, 오른쪽으로는 드레스룸+파우더룸+전용욕실로 구분되며 세면대와 파우더룸 공간입니다.




루프탑은 인피니티풀과 풀파티가 가능한 바가 설치되어 있습니다. 산방산과 단산등 아름다운 자연조망과 함께 제주에서의 여유로움을 느끼실 수 있습니다.


제주도에서도 단 1%만이 소유할 수 있는 하이엔드 고급타운하우스 VILLA DE (빌라드 드므)에서 누려 보세요.
최고급 명품 타운하우스 빌라드 드므는 한국 전통 건축구조와 현대적인 모더니즘 건축 양식이 조화를 이루며, 하이엔드 주거 브랜드로서 새로운 삶의 기준을 제시합니다. "드므"는 우리말로 큰 그릇을 뜻하며, 화재 대비를 위한 방화수를 담아 생명과 재산을 보호하는 역할을 합니다.
계약 진행
VILLA DE(빌라드 드) 드므 분양가 유선문의
계약금 20%
중도금 40%
잔금 40%
마무리
제주 빌라드 드므 타운하우스는 교육환경, 자연환경, 교통환경 등 모든 면에서 뛰어난 편의와 품격을 제공하는 곳으로써, 특히 영어 교육도시의 생활환경을 누릴 수 있는 최상의 선택지입니다. 만약 이곳을 소유하고자 하신다면, 샘플하우스 투어 예약을 통해 직접 확인하실 수 있습니다.
100% 사전예약제로 운영하고 있습니다. 상담 및 방문계획이 있으신 분은 아래 번호로 연락 주시면 상담 및 방문예약을 해드립니다. 많은 관심과 문의 부탁드립니다. 감사합니다.
*참고: 빌라드 드므는 당일방문 및 사전예약 없이는 관람이 불가합니다.
상담 예약 010-7683-1788
'부동산 정보' 카테고리의 다른 글
| 계양롯데캐슬 파크시티 인천 계양구 효성동 신축아파트 분양 모델하우스 및 분양일정 (0) | 2024.04.09 |
|---|---|
| 오등동 타운하우스 제주시 아라동 인근 마제스티 더힐 분양 즉시입주 가능 (0) | 2024.04.07 |
| 제주 영어교육도시 아주 더하이 클래스 민간임대 아파트 분양 (0) | 2024.03.30 |
| 세종 코지캐슬 86세대 특별 분양 원봉리 토지 (0) | 2024.03.29 |
| 제주도 애월 루체비스타 타운하우스 특별 분양 즉시입주 가능 (0) | 2024.03.27 |